Kruisplein 608

3012CC ROTTERDAM

Verkocht onder voorbehoud

€ 488.000,- k.k.

Soort woning Appartement

Bouwjaar 2013

Oppervlakte wonen 85 m²

Aantal slaapkamers 2

Kenmerken

Overdracht

Vraagprijs
€ 488.000 k.k.
Vraagprijs per m²
€ 5.741
Aangeboden sinds
5 september 2025
Status
Verkocht onder voorbehoud
Aanvaarding
In overleg
Bijdrage VvE
€ 260,56 per maand

Bouw

Soort woning
Appartement
Soort appartement
Bovenwoning
Bouwjaar
2013

Oppervlakten en inhoud

Oppervlakte wonen
85 m²
Oppervlakte gebouwgebonden buitenruimte
16 m²
Inhoud
273 m³

Indeling

Aantal kamers
3
Aantal slaapkamers
2
Aantal badkamers
2
Badkamervoorzieningen
Wastafelmeubel en inloopdouche
Aantal woonlagen
1
Gelegen op
6
Voorzieningen
Mechanische ventilatie en lift

Energie

Energielabel
A
Isolatie
Dubbel glas en volledig geïsoleerd
Verwarming
Stadsverwarming
Warm water
Stadsverwarming

Buitenruimte

Ligging
Aan drukke weg, in centrum, in woonwijk en vrij uitzicht
Tuin
Geen tuin

Garage

Soort garage
Parkeerplaats

Vereniging van Eigenaren

Inschrijving KvK
Ja
Jaarlijkse vergadering
Ja
Periodieke bijdrage
Reservefonds aanwezig
Ja
Onderhoudsplan
Ja
Opstalverzekering
Ja

Omschrijving

Modern en in hartje Rotterdam gelegen bieden wij dit hoekappartement aan!

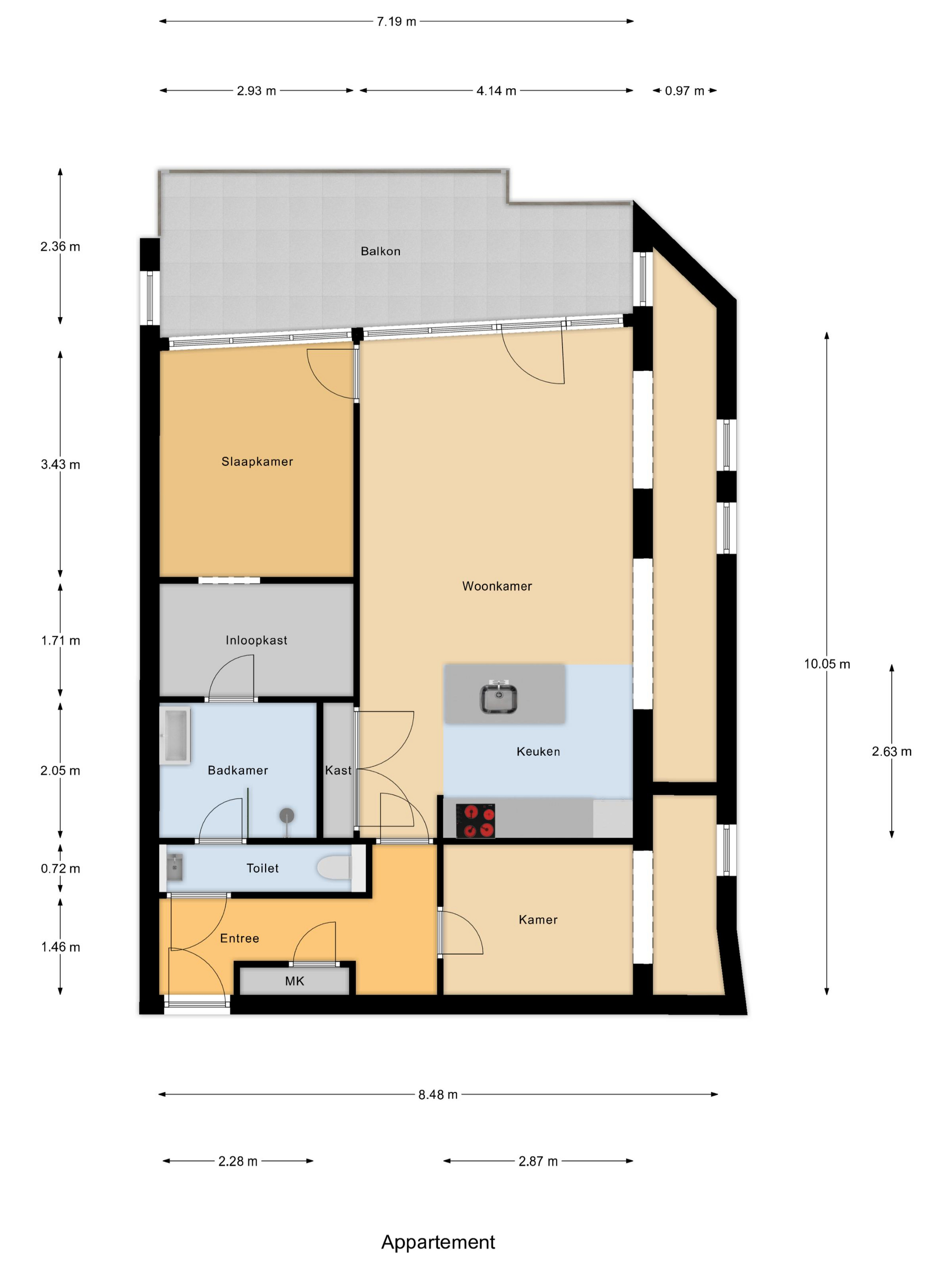
In het wooncomplex De Calypso vind je dit appartement welke is gelegen op de 6e verdieping. Er bevinden zich 2 slaapkamers en een fijne woonkamer met open keuken. Er is vloerverwarming aanwezig en een eigen parkeerplaats in de onderbouw (optionele afname € 29.000,--).

Het iconische gebouw De Calypso heeft een opvallende architectuur en biedt de bewoners diverse voorzieningen aan zoals een centrale ontvangstruimte en een gezamenlijke fitnessruimte. Vanwege de centrale ligging is Rotterdam is alles binnen handbereik, denk hierbij aan: Rotterdam Centraal, De Doelen, Pathé, supermarkten en vele verschillende restaurants en winkels.

Indeling
Begane grond:
Het complex betreedt via de centrale ontvangstruimte met een conciërge. Tevens vind je hier de brievenbussen en toegang tot de lift welke je naar het appartement kan brengen. Via de centrale ruimte heb je ook toegang tot de parkeergarage, waar ook de eigen parkeerplaats terug te vinden is.

6e verdieping:
Je betreedt de woning via de hal welke toegang geeft tot alle vertrekken.

De woonkamer heeft veel lichtinval door de grote ramen en is een sfeervolle plek om te ontspannen. De woonkamer geeft toegang tot het zonnige balkon (gelegen op het westen). Een heerlijk balkon om even te ontsnappen van het stadsleven.

In de woonkamer tref je ook de open keuken welke van alle gemakken is voorzien, te weten een spoeleiland met bar, combi-oven/magnetron, inductiekookplaat met afzuigkap en een koel-vriescombinatie. Er is ook nog een ruime bergkast aanwezig.

Via de woonkamer bereik je de grote slaapkamer heeft een afmeting van circa 10,3 m2 beschikt over een ruimte inloopkast en geeft toegang tot de badkamer.

De andere kamer van circa 6,5 m2 kan gebruikt worden als tweede slaapkamer of bijvoorbeeld een werkkamer.

De badkamer beschikt over een inloopdouche en een wastafelmeubel. De badkamer is bereikbaar vanuit het toilet en de inloopkast in de grote slaapkamer.

Aanvullende informatie
Bouwjaar 2013
Woonoppervlakte 85 m2
Inhoud 273 m3
De kozijnen zijn voorzien van dubbel glas en uitgevoerd in kunststof.
De woning wordt verwarmd door middel van een stadsverwarming. Deze levert ook het warme water in de woning.
Energielabel: A
Bijdrage V.v.E. appartement € 237,36 per maand / parkeerplaats € 23,20 per maand
Erfpacht - eeuwigdurend afgekocht
Oplevering: in overleg

Wilt u meer weten over deze woning of een bezichtiging inplannen, neem dan contact op met ons kantoor via deze website > 'Plan een bezichtiging'.

Koopovereenkomst
Van een juridische overeenkomst is pas sprake als de koopovereenkomst door zowel verkoper als koper is ondertekend. In de koopovereenkomst zullen de volgende extra artikelen worden opgenomen:
- niet bewoningsclausule;
- geen lijst van zaken;
- as is where is.

Disclaimer
Alle verstrekte informatie moet beschouwd worden als een uitnodiging tot het doen van een bod of om in onderhandeling te treden. Er kunnen geen rechten worden ontleend aan deze woninginformatie.

De Meetinstructie is gebaseerd op de NEN2580. De Meetinstructie is bedoeld om een meer eenduidige manier van meten toe te passen voor het geven van een indicatie van de gebruiksoppervlakte. De Meetinstructie sluit verschillen in meetuitkomsten niet volledig uit, door bijvoorbeeld interpretatieverschillen, afrondingen of beperkingen bij het uitvoeren van de meting.

De teksten en impressies bedoeld om een goede indruk te geven van het object. Aan de inhoud ervan is de grootst mogelijke zorg besteed. Desondanks is alle informatie nadrukkelijk onder voorbehoud. Hieraan kunnen geen rechten worden ontleend. De getoonde artist impressions zijn bedoeld om een indruk te geven van de woning en kunnen afwijken van de uiteindelijke uitvoering.

Media

Locatie